Выбрать город Балаково Выбрать город
Почта
Напишите нам!
Телефон
Бесплатно по России
Телеграм
WhatsApp

Параллельный тройник ППУ в Балаково

Параллельные тройники ППУ в Балаково: производство на заказ от завода Альфа-тех Инвест. Наше предприятие изготавливает тройники в ППУ изоляции с параллельным расположением ответвления для компактных узлов трубопроводов. Выпускаем изделия всех диаметров в различных защитных оболочках. Возможно исполнение с системой ОДК и теплоизоляцией до 140°C.

Сертифицированная продукция высокого качества. Выгодные цены без посредников. Доставка по РФ и СНГ. Заказ по телефону: 8 (800) 700-43-11.

Тройники параллельные ППУ со склада в Балаково, широкий выбор трубной продукции, собственное производство. В нашем ассортименте представлены трубы для прокладки коммуникаций разного назначения, фасонные элементы к ним, а также опоры освещения, ЛЭП и кронштейны к ним. Тройники параллельные ППУ соответствуют современным стандартам, в том числе и ГОСТ. С нашей продукцией возможно создание трубопроводных систем нужной конфигурации.

Параллельный тройник ППУ
Параллельный тройник ППУ

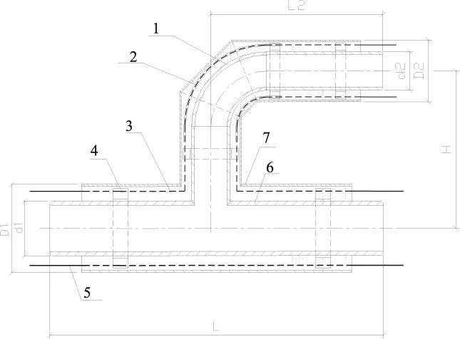
Описание:

Пример условного обозначения параллельного тройника диаметром 426−219 мм с изоляцией типа 2

Условные обозначения:

  1. стальной отвод;
  2. электроизоляционная трубка (для труб со стальной оболочкой;
  3. изоляция из ППУ;
  4. центрирующая опора;
  5. проводник-индикатор системы ОДК;
  6. стальная труба;
  7. оболочка
Получить каталог
трубы ППУ, фасонные изделия, комплектующие, многогранные опоры и металлоконструкции

Параметры и виды тройников

Тройник параллельный ППУ предназначен для врезки в основную магистраль дополнительных труб равного или меньшего диаметра. При этом данная деталь может либо разделять, либо объединять внутренние потоки. В зависимости от оболочки они бывают двух видов:

  • тройники параллельные ППУ ОЦ, покрытые оцинкованной сталью;
  • тройники параллельные ППУ ПЭ, покрытые полиэтиленом.

Каждый вид используется в определенных целях. Оцинкованные тройники необходимы при прокладке надземных магистралей, а с полиэтиленовой оболочкой — при монтаже подземных коммуникаций.

Таблица: Параллельный тройник, мм

d2 d1 32 38 45 57 76 89 108 133 159 219 273 325 426 530 630 720 820 920 1020 1420
L 1200 1200 1200 1200 1300 1300 1300 1300 1400 1400 1800 1800 1900 2000 2000 2000 2000 2100 2400 2700
32 L2 700 700 700 700 700 700 700 700 700 700 700 700 700
H 275 275 275 283 293 303 313 325 338 370 413 438 493
38 L2 700 700 700 700 700 700 700 700 700 700 700 700
H 275 275 283 283 303 313 325 338 370 413 438 493
45 L2 700 700 700 700 700 700 700 700 700 700 700
H 275 283 293 303 313 333 338 370 420 445 500
57 L2 700 700 700 700 700 700 700 700 700 700 700
H 290 300 310 320 343 345 378 430 455 500 510
76 L2 700 700 700 700 700 700 700 700 700 700 700
H 310 320 330 343 355 388 440 455 510 585
89 L2 700 700 700 700 700 700 700 700 700 700
H 330 340 3353 365 398 440 465 520 595 640
108 L2 700 700 700 700 700 700 700 700 700 700
H 350 363 375 408 450 475 530 605 650 700
133 L2 800 800 800 800 800 800 800 800 800 800
H 375 388 420 463 488 543 618 663 713 763
159 L2 800 800 800 800 800 800 800 800 800 800
H 405 435 475 500 555 630 675 725 775 825
219 L2 800 800 800 800 800 800 800 800 800 800
H 565 608 633 688 763 808 858 908 958 1008
273 L2 1000 1000 1000 1000 1000 1000 1000 1000 1000 1000
H 650 675 730 805 850 900 950 1000 1050 1150
325 L2 1100 1100 1100 1100 1100 1100 1100 1100 1100 1100
H 713 763 830 875 925 975 1025 1075 1175 1275
426 L2 1200 1200 1200 1200 1200 1200 1200 1200 1200
H 913 985 1030 1080 1130 1180 1230 1330 1430
530 L2 1200 1200 1200 1200 1200 1200 1200 1200
H 1160 1205 1255 1305 1355 1405 1505 1605

Применение тройников ППУ

Эти детали используют в различных отраслях производства и промышленности. Нашими заказчиками являются нефте- и газодобывающие предприятия, компании, работающие в сфере ЖКХ. Функция тройников параллельных ППУ — разделение или соединение потоков жидкостей или газа при их подаче или транспортировке. В зависимости от конфигурации они бывают равнопроходные и переходные для соединения труб разного диаметра.

Реализованные проекты

Труба в ППУ-изоляции
Труба в ППУ-изоляции

Произведена прокладка и успешно запущены в работу трубопроводы в ППУ-изоляции на АЗС Магистраль М-7 Волга 846 км.

Трубы ППУ в изоляции
Трубы ППУ в изоляции

Произведена прокладка и успешно запущены в работу трубопроводы в ППУ-изоляции в Казань, ул.Горького, д.10

Трубопровод в ППУ-изоляции
Трубопровод в ППУ-изоляции

Произведена прокладка и успешно запущены в работу трубопроводы в ППУ-изоляции в Казань, ул.Галактионова, д.3А

Трубы в ППУ-изоляции
Трубы в ППУ-изоляции

 Произведена прокладка и успешно запущены в работу трубопроводы в ППУ-изоляции в Казань, ул.Зеленая, д.1

Труба ППУ
Труба ППУ

Произведена прокладка и успешно запущены в работу трубопроводы в ППУ-изоляции в Казань, ул.Лесгафта, д. 24-2

Трубопровод ППУ
Трубопровод ППУ

Произведена прокладка и успешно запущены в работу трубопроводы в ППУ-изоляции в Казань, ул.Вишневского, д.51-3

Прокладка трубопровода
Прокладка трубопровода

Произведена прокладка и успешно запущены в работу трубопроводы в ППУ-изоляции в Казань, ул.Тополевая, д.8

Прокладка трубопровода ППУ
Прокладка трубопровода ППУ

Произведена прокладка и успешно запущены в работу трубопроводы в ППУ-изоляции  в г. Казань, ул.Миля д.63А

Прокладка трубопровода ППУ- изоляции
Прокладка трубопровода ППУ- изоляции

Произведена прокладка и успешно запущены в работу трубопроводы в ППУ-изоляции в г.Уфа, пр.Дружбы народов, стройка около д.53

Прокладка трубопровода
Прокладка трубопровода

 Произведена прокладка и успешно запущены в работу трубопроводы в ППУ-изоляции в г.Набережные Челны пр.Набережночелнинский, д.19

Трубопровод ППУ-изоляции
Трубопровод ППУ-изоляции

Произведена прокладка и успешно запущены в работу трубопроводы в ППУ-изоляции в г.Набережные Челны, ЖК Красные Челны пос. 3ЯБ Комсомольский р-н

Свойства тройников ППУ

Наши трубы ППУ и другая продукция для монтажа трубопроводов широко востребована в различных климатических условиях благодаря своим качественным характеристикам. Благодаря легкому весу тройники ППУ легко монтировать, и это уменьшает трудозатраты. Кроме того, они имеют следующие преимущества:

  • хорошие герметичные свойства;
  • предотвращение теплопотерь;
  • устойчивость к коррозии и механическим повреждениям;
  • возможность использования в любом климате.

При возникновении вопросов относительно параметров продукции обращайтесь в нашим специалистам — они ответят на все вопросы относительно технических, а также озвучат на тройников ППУ цену и условия доставки.

Кроме трубной продукции и комплектующих, завод Альфа-тех Инвест выпускает также стальные опоры освещения, кронштейны для светильников и опор линий ЛЭП. Вся продукция сопровождается техническим паспортом и сертификатом соответствия, в том числе подходит под стандарты ГОСТ. Полный ассортимент выпускаемых товаров предоставят менеджеры по запросу.

Параллельный тройник ППУ по цене производителя

Если вам необходимо приобрести тройники параллельные ППУ по цене от производителя или другую продукцию, свяжитесь с нашими специалистами любым способом:

Менеджеры узнают о потребностях вашего производства, помогут подобрать товары и оформить заказ. Мы осуществляем доставку во все уголки РФ, а также некоторые страны СНГ. Ждем ваших звонков и обращений!

Купить параллельные тройники ППУ в Балаково

Наш завод предлагает купить параллельные тройники ППУ на оптимальных условиях. На сайте вы можете ознакомиться с широким ассортиментом, подобрать все необходимое для реализации вашего проекта. Если вам требуется дополнительная информация: 

Напишите нам!
Бесплатно по России
Вопросы и ответы
На каких условиях оплаты вы работаете?
Открыть/Закрыть
Стандартные условия — предоплата 100%. Для постоянных клиентов и крупных серийных заказов условия обсуждаются индивидуально.
Какие сроки изготовления вашей продукции?
Открыть/Закрыть
Сроки изготовления определяются индивидуально для каждого заказа. В среднем это от 5 до 14 рабочих дней.
Можете ли вы организовать доставку продукции до клиента?
Открыть/Закрыть
Мы сотрудничаем с множеством логистических компаний. Наши менеджеры рассчитают стоимость продукции с доставкой в любой регион России. В коммерческое предложение входит расчет веса, объема и необходимого количества транспорта. Вы также можете самостоятельно организовать доставку.
Можно ли приехать на ваш завод на ознакомительную экскурсию?
Открыть/Закрыть
Да, мы приглашаем потенциальных клиентов на экскурсию. Вы сможете ознакомиться с нашим производством и увидеть процесс изготовления интересующей вас продукции. Наш завод находится по адресу: Казань, ул. Михаила Миля, 53а.
Есть ли гарантия на вашу продукцию, и сколько она составляет?
Открыть/Закрыть
Мы предоставляем гарантию на производимую продукцию сроком до 30 лет.
Какие документы качества вы выдаете на производимую продукцию?
Открыть/Закрыть
На каждую партию отгружаемой продукции мы выдаем сертификат качества и паспорт.
WhatsApp Телеграм Телефон
Архангельская Область
Архангельск
Астраханская Область
Астрахань
Башкортостан Республика
Уфа
Владимирская Область
Владимир
Волгоградская Область
Волгоград
Воронежская Область
Воронеж
Кировская область
Киров
Кировская Область
Киров
Коми Республика
Сыктывкар
Костромская Область
Кострома
Красноярский Край
Красноярск
Ленинградская Область
Санкт-Петербург
Мордовия Республика
Саранск
Нижегородская Область
Нижний Новгород
Новосибирская Область
Новосибирск
Омская Область
Омск
Пензенская Область
Пенза
Пермский Край
Пермь
Ростовская Область
Ростов-на-Дону
Рязанская Область
Рязань
Самарская Область
СамараТольятти
Саратовская Область
БалаковоСаратов
Свердловская Область
Екатеринбург
Тамбовская Область
Тамбов
Тверская Область
Тверь
Тюменская Область
Тюмень
Удмуртская Республика
Ижевск
Ульяновская Область
Ульяновск
Ханты-Мансийский Автономный округ - Югра Автономный округ
Сургут
Челябинская Область
Челябинск
Чувашская Республика - Чувашия
Чебоксары
Ярославская Область
Рыбинск
Наверх